Apartment for sale, 2+kk - 1 bedroom, 55m2

Chmelařská, Praha 5 - Jinonice

10 100 000 CZK, with agency fees, with legal services Get a low-rate mortgage
Make Enquiry
Are you looking for modern living in a quiet location with excellent access to the city centre?

We offer for sale a bright 2-room apartment (2+kk) with a total area of 67 m², featuring a balcony and an underground parking space, located in the popular Botanica residential project in Jinonice, Prague 5.

The apartment is currently registered as a studio (atelier), however complete documentation for its reclassification into a residential unit has already been submitted to the katastr nemovitostí.

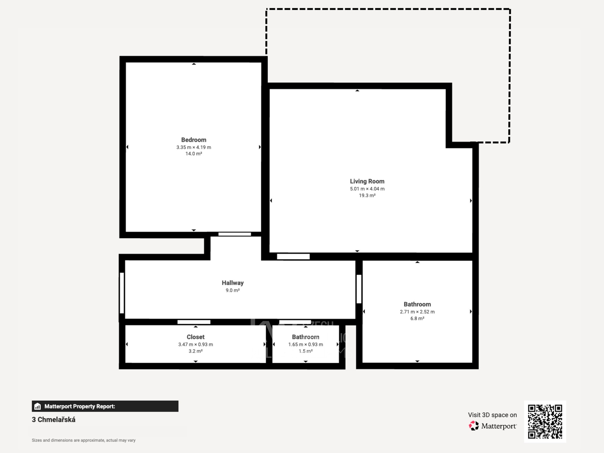
Layout

- entrance hall (9.03 m²)
- storage room (3.27 m²)
- bathroom with bathtub (7.00 m²)
- separate toilet (1.57 m²)
- bedroom (14.63 m²)
- living room with kitchen (19.02 m²)
- balcony (12.83 m²)

The apartment includes a parking space in the underground garage.

Equipment & Technical Details

- apartment in well-maintained condition
- wooden windows with double glazing
- wooden floors
- custom-made kitchen including built-in appliances
- bathroom with bathtub and high-quality sanitary fittings
- central heating and hot water from a gas boiler located in the building
- building energy rating: B

Location Benefits

The Botanica project belongs among the most sought-after residential areas of Prague 5.
It offers a quiet environment close to nature – Vidoule Park and Prokopské údolí are only a few minutes’ walk away - while maintaining excellent transport accessibility (metro station Nové Butovice within 10 minutes on foot).

The neighbourhood provides full civic amenities: schools, kindergartens, shops, the German School, fitness centres, and restaurants.

This apartment is ideal both for comfortable own living and as an investment opportunity in an attractive Prague location.

Jiří Koucký - Real Estate Agent

All listed measurements are approximate. In case of multiple interested parties, the property will be sold to the highest offer, and the owner reserves the right to choose the buyer based on their own criteria. All published information is for informational purposes only and does not constitute an offer under Sections 1731 or 1732 of the Czech Civil Code, nor a public promise under Section 1733 of the Civil Code.
Offer ID28616
Last updated08.10.2025
Price10 100 000 CZK, with agency fees, with legal services
Price for discussionNo
Agency feeWith agency fees
Legal servicesWith legal services
ConditionVery good condition
Construction typeFrame
OwnershipPersonal
FurnishedYes
Floor3
Usable area55m2
Floor area67m2
Balcony area13m2
GarageYes
ParkingNo
CellarNo
BalconyYes
TerraceNo
LoggiaNo
ElevatorYes
PoolNo
Water sourceRemote source
HeatingCentral remote
Electricity230V
TelecomInternet, Telephone
Waste managementPublic sewage
Barrier-free accessYes
Building typeTerraced
Building surroundingsBusiness and residential
Number of garages1
Garrets (attic spaces)No
TransportBus, Public transport, Road, Highway, Train
Road typeAsphalt, Paved
Low-energyNo
Energy RatingB - Very economical
DecreeNo. 78/2013 Coll.
Energy Performance Certificatedownload
Send me an offer for a low-rate mortgage
Jiří Koucký

Jiří Koucký

Reveal phone number

Keller Williams Czech Republic

Kaprova 52/6, Praha 1, 11000

view all agency properties