Apartment for sale, 4+kk - 3 bedrooms, 82m2

Vejvanovského, Praha 4 - Chodov

8 900 000 CZK, with agency fees Get a low-rate mortgage
Make Enquiry
Spacious 3-Bedroom Apartment with Enclosed Loggia and Two Cellars in a Residential Part of Prague 4 – Chodov.

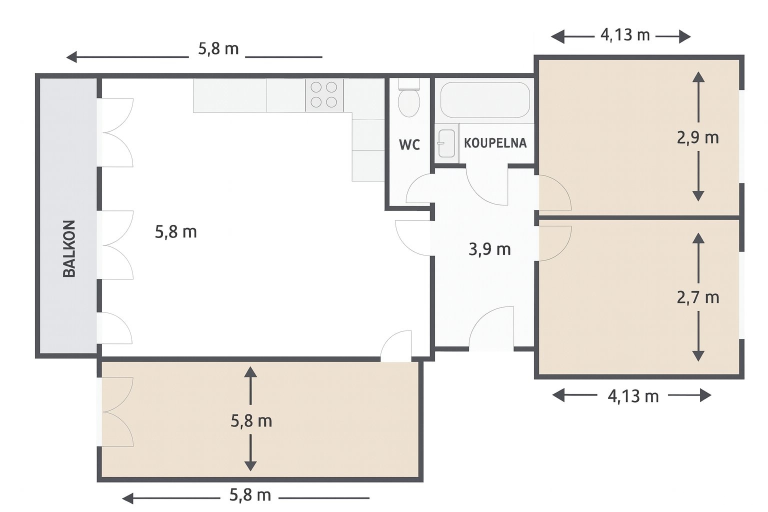
A bright apartment with a layout of 4 rooms incl. kitchen (4+kk) and a total floor area of 81.6 m² is situated on the 3rd floor of a low-rise four-story residential building in a quiet part of Prague 4 – Chodov. The apartment includes an enclosed loggia of 5.65 m² and two cellars with a total area of 4.55 m². The property offers pleasant views of the surrounding greenery.

The layout of the apartment includes a living room with kitchen (28.22 m²), three separate bedrooms (12.71 m², 14.63 m² and 12.35 m²), an entrance hall (8.61 m²), a bathroom (3.52 m²), a separate toilet (1.5 m²) and a loggia (5.65 m²).

The apartment features a brick core, and the electrical wiring was completely renovated in 2009. The building is in very good technical condition, with an energy performance rating of C and low monthly service charges.

Location provides full urban amenities within walking distance – schools, kindergartens, sports facilities, shops, and medical services. Metro line C (Opatov, Háje) and bus stops are only a few minutes’ walk away. Easy access to the D1 motorway and the South Connecting Road ensures fast transport connections to the city center and other parts of Prague.

This property is an ideal choice for a family seeking comfortable living in a quiet environment with greenery views and excellent infrastructure, as well as for investors.

Floor area 81.6 m² + loggia 5.65 m² + cellars 4.55 m²
Offer ID00855
Last updated30.09.2025
Price8 900 000 CZK, with agency fees
Price for discussionNo
Agency feeWith agency fees
ConditionVery good condition
Construction typeConcrete
OwnershipPersonal
Floor4
Number of floors5
Usable area82m2
Cellar area5m2
GarageNo
ParkingNo
CellarYes
BalconyNo
TerraceNo
LoggiaYes
ElevatorNo
PoolNo
HeatingCentral remote
GasEnergy company
Electricity230V
TelecomCable TV, Satellite, Internet
Waste managementPublic sewage
Garrets (attic spaces)No
TransportPublic transport
Road typeAsphalt
Low-energyNo
Energy RatingC - Economical
DecreeNo. 78/2013 Coll.
Energy Performance Certificatedownload
Send me an offer for a low-rate mortgage
Petr Dvořák

Petr Dvořák

Reveal phone number

Reality Dvořák s.r.o.

Dlouhá 705/16, Praha 1, 11000

view all agency properties