Family house for sale, 211m2, 390m2 of land

Dolní Břežany

We are exclusively offering for sale a family house RD1 as part of a residential project of modern family houses in Dolní Břežany. This house is divided into two separate housing units:

RD1 – Unit A: RESERVATION

RD1 – Unit B: available

The unit has 211 sqm of usable area and a plot of approximately 390 sqm. Of course, there is a private entrance, garage and private terrace, which ensures maximum comfort and complete independence.

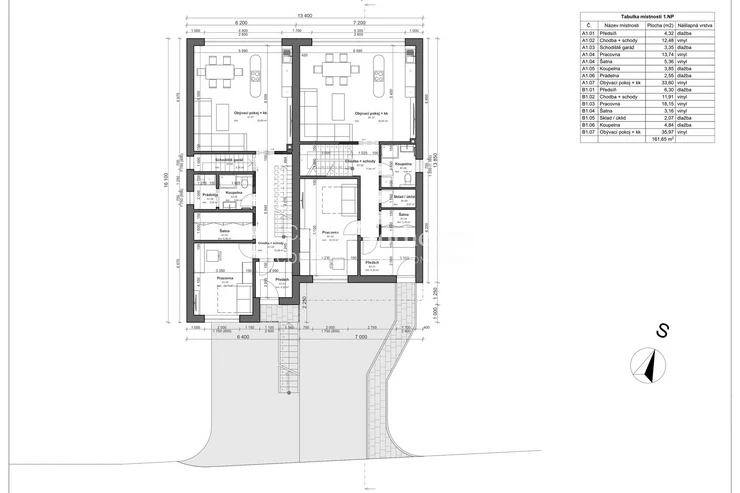
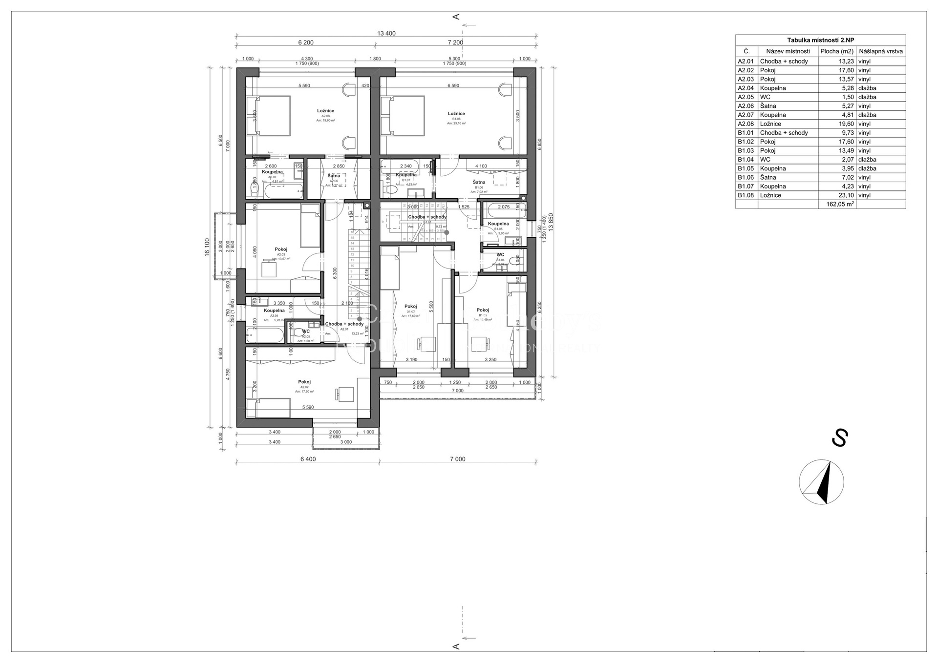
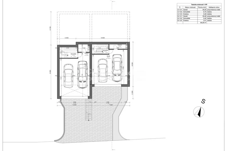
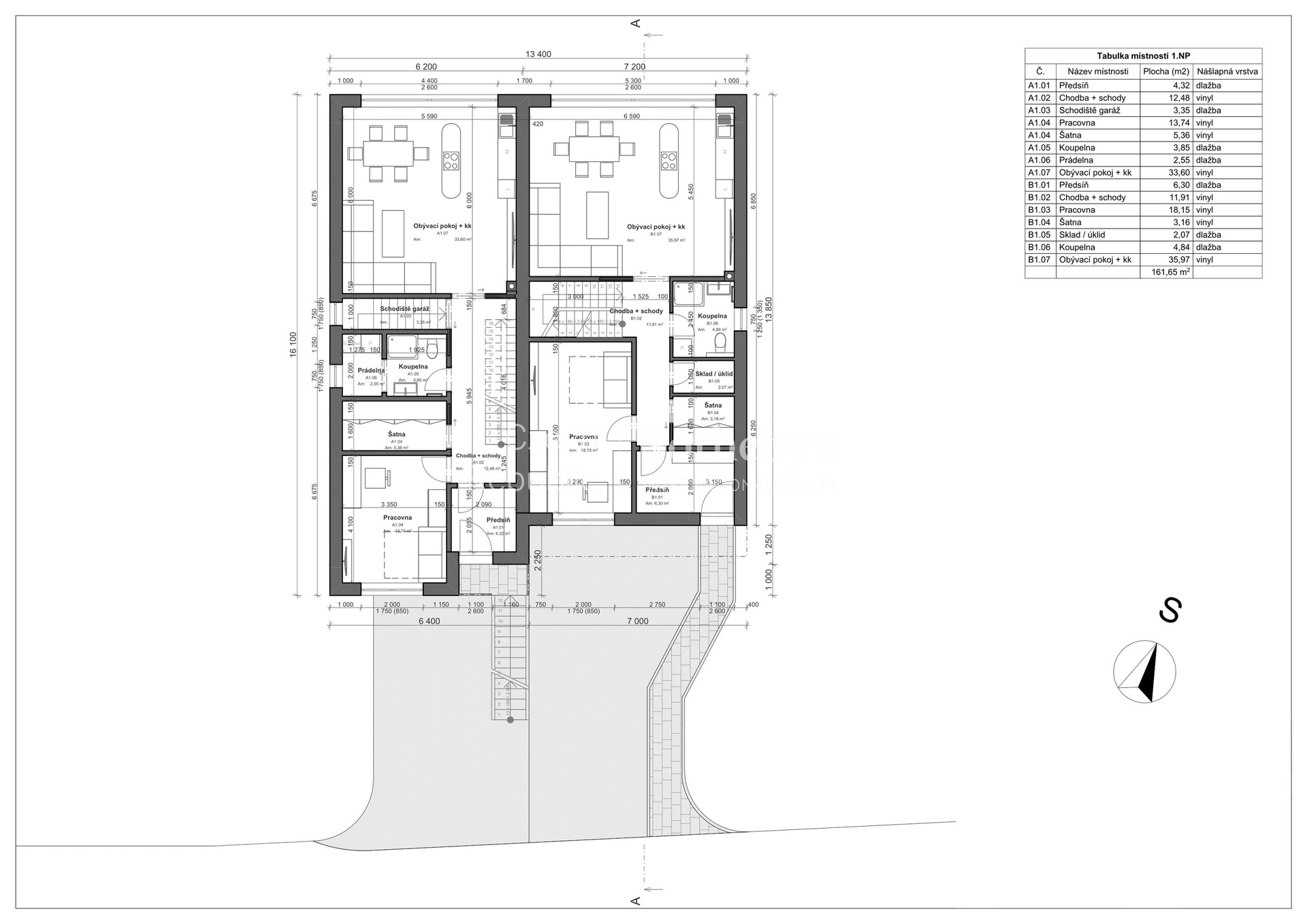
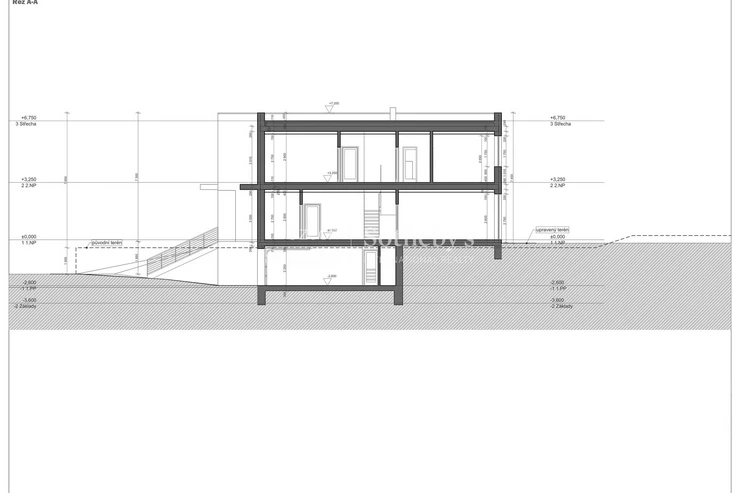
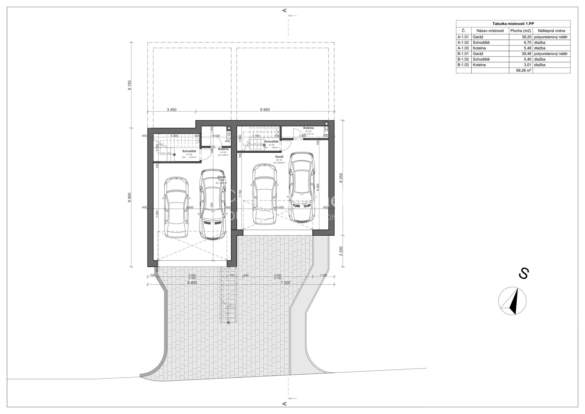
The layout is designed with an emphasis on modern and economical living. On the ground floor there is a spacious living room with a kitchenette and access to the garden, a study, a dressing room, a bathroom and a laundry room. On the upper floor there are three bedrooms, two bathrooms and a separate toilet. In the basement there is a garage and a boiler room.

The construction is based on high-quality ceramic bricks with graphite polystyrene insulation, the ceilings are monolithic reinforced concrete and flat roofs covered with Fatrafol foil. Large-format windows with insulating triple glazing are complemented by electrically controlled external blinds. Heating is provided by underfloor heating connected to a gas condensing boiler with a hot water tank, comfort is complemented by a recuperation unit and readiness for a heat pump and a photovoltaic system.

The unit has its own electricity meter and gas meter, a retention and accumulation tank for rainwater with a volume of 6–7 m³ with the possibility of connecting to an automated irrigation system, a connection for a robotic lawnmower and preparation for a camera or security system.

Future owners have the option of individual client interior modifications, including the choice of floors, tiles, sanitary ware or lighting. Thanks to this, the unit can be completed exactly according to personal ideas.

Planned move-in: October 2026.

Location

Dolní Břežany is one of the most desirable residential locations in the vicinity of Prague. It is located on its southern outskirts and offers peaceful living in greenery with quick access to the center, which can be reached by car in approximately 15-20 minutes. The village stands out for its quality infrastructure, with schools, shops, restaurants and sports facilities.

The local environment is safe, friendly and ideal for family life. The surrounding nature provides a wide range of recreational opportunities, whether it is cycle paths, hiking trails, parks or forests. Dolní Břežany represents a combination of a high standard of living, rich civic amenities and proximity to the capital.
Offer ID1038-RD1
Last updated02.10.2025
Price28 300 000 CZK
Price for discussionNo
Size5 rooms and more
House typeWith floors
ConditionUnder construction
Construction typeBrick
FurnishedNo
Number of floors2
Usable area211m2
Land area390m2
Year of acceptance2026
Move-in date01.10.2026
GarageYes
ParkingNo
CellarNo
BalconyNo
TerraceNo
LoggiaNo
ElevatorNo
PoolNo
Building typeDetached
Building surroundingsResidential
Garrets (attic spaces)No
TransportPublic transport, Road
Low-energyNo
Energy RatingB - Very economical
DecreeNo. 78/2013 Coll.
Energy Performance Certificatedownload
Send me an offer for a low-rate mortgage
Alla Čechovskych

Alla Čechovskych

Reveal phone number

Sotheby's International Realty Czech Republic

Janáčkovo nábřeží 39/51, Praha 5, 15000

view all agency properties