Apartment for sale, 3+1 - 2 bedrooms, 109m2

Na Šmukýřce, Praha 5 - Košíře

9 390 000 CZK, with agency fees, with legal services Get a low-rate mortgage
Make Enquiry
On the edge of a villa district, in the quiet Na Šmukýřce street, we are offering a duplex apartment with character and great potential.

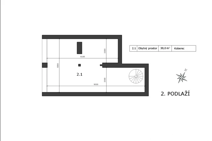
This 3+1 duplex with a floor area of 109.18 m² and three balconies with a total size of approx. 6 m² is an ideal choice for those who seek spacious city living while wanting to create a home tailored to their own taste.

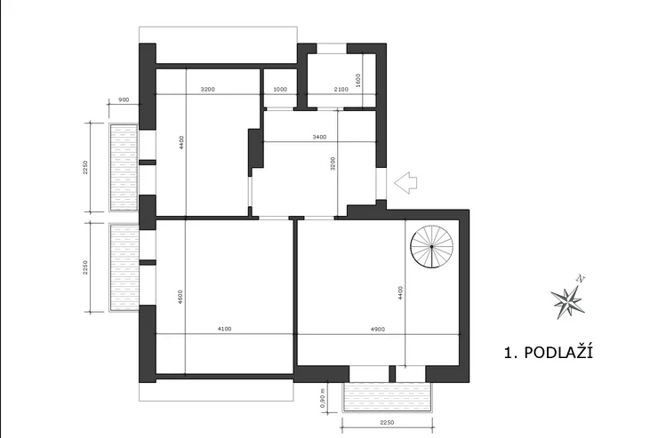
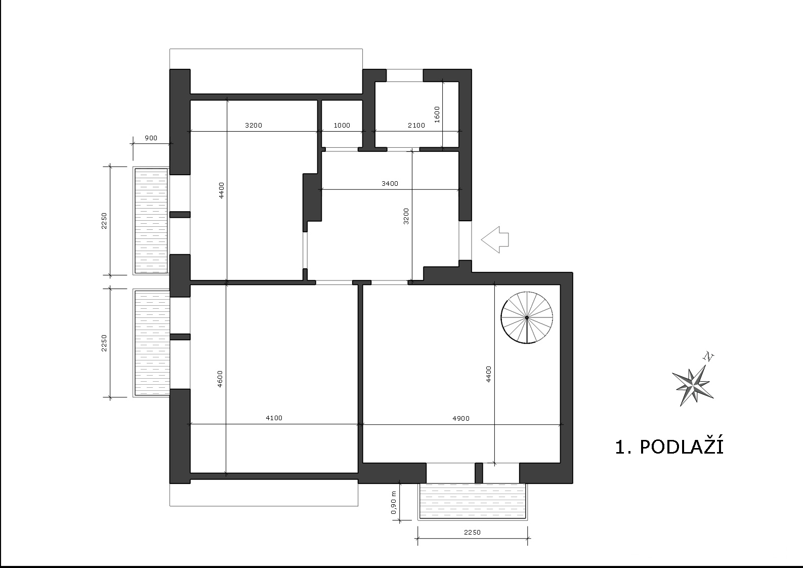
The apartment is located on the 3rd and 4th floor of a classic brick building. The layout includes an entrance hall, separate toilet, bathroom, kitchen, two bedrooms, and a spacious living area on the upper floor with a large atelier window and two roof windows. The open interior allows for layout adjustments to fully unlock the potential of this bright duplex.

Three balconies offer pleasant views of the surrounding villas and greenery.
The apartment also includes a large cellar of 11 m². Parking is available directly in front of the building. Heating and hot water are provided by a private gas boiler, giving you full control over consumption.

The location combines quiet living in greenery with excellent accessibility. A public transport stop is just a few steps away, while Smíchov center and the Anděl metro station can be reached within 15 minutes. The French Lycée is also within walking distance.

This apartment is waiting for a new owner to breathe new life into it.
If you are looking for a place to create a home of your own, I will be happy to guide you through the property in person.
Offer ID00846
StatusReserved
Last updated07.10.2025
Price9 390 000 CZK, with agency fees, with legal services
Price for discussionNo
Agency feeWith agency fees
Legal servicesWith legal services
ConditionVery good condition
Construction typeBrick
OwnershipPersonal
Floor4
Usable area109m2
Balcony area6m2
Cellar area11m2
GarageNo
ParkingNo
CellarYes
BalconyYes
TerraceNo
LoggiaNo
ElevatorNo
PoolNo
Water sourceRemote source
HeatingCentral gas
Electricity230V
TelecomInternet
Waste managementPublic sewage
Year of construction2000
Garrets (attic spaces)No
TransportPublic transport, Road
Low-energyNo
Energy RatingF - Very uneconomical
DecreeNo. 78/2013 Coll.
Energy Performance Certificatedownload
Send me an offer for a low-rate mortgage
Petr Dvořák

Petr Dvořák

Reveal phone number

Reality Dvořák s.r.o.

Dlouhá 705/16, Praha 1, 11000

view all agency properties