Family house for sale, 477m2, 1441m2 of land

Bystřice - Semovice

12 790 000 CZK, with agency fees, with legal services Get a low-rate mortgage
Make Enquiry
Multi-family house near the Konopiště golf course - the ideal combination of
living and business

Are you looking for a property that will offer you not only a quiet family
environment, but also a wide range of business opportunities? This multi-family
house in the village of Semovice, just a few minutes from Benešov and the
popular Konopiště golf resort, represents an exceptional opportunity for both
living and investment.

What does the property offer?
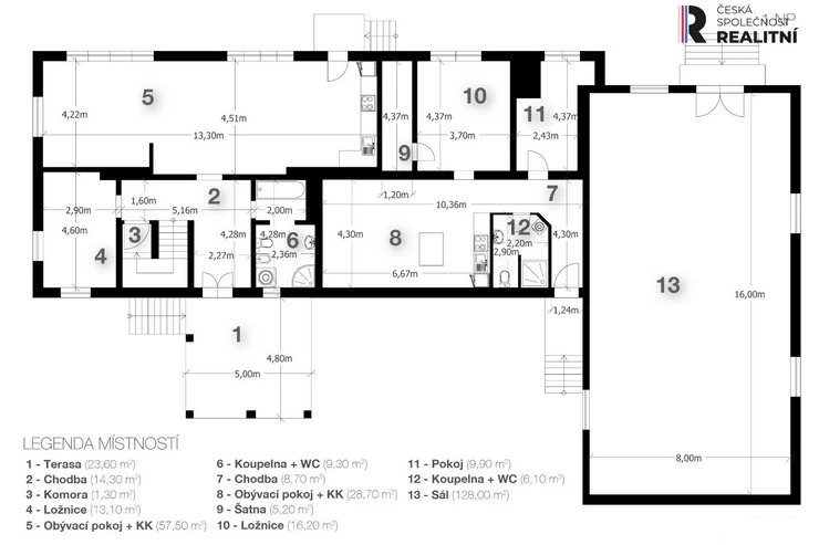
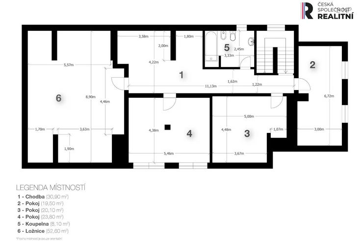
-Generous layout
The three-story house with one underground floor has a total usable area of 349
m². There are three separate residential units here, which allow for
multi-generational living or rental. If necessary, additional living spaces can
be created.

-Modernization and comfort
The house underwent extensive renovation in 2022–2023, so it meets current
standards for modern living and business operations.

-Business space with facilities
The house includes a large hall with an area of 128 m², which previously served
as a furniture store - ideal for a showroom, offices, studio, doctor's office
or business operation.

Strategic location with a future
Semovice is located in a quiet natural environment, but at the same time within
reach of the city of Benešov. Nesvačily Airport is also nearby and just 6 km
away is the planned exit from the future D3 motorway near the village of Tisem,
which ensures excellent transport accessibility in the future.

Wide range of uses
According to the zoning plan, the property can be used not only for family or
apartment housing, but also for accommodation (guest houses), social and school
facilities, sports activities, non-disruptive production, service activities,
shops or catering.

Possibility of expansion
It is possible to purchase two neighboring building plots for the property -
one includes a pond and part of the forest, the other has an asphalt driveway,
which further expands the potential of the entire area.

The energy performance is currently listed as class G - the PENB certificate is
in the process of being processed.

This property is a great choice for multi-generational housing, a combination
of business and life in one place, or as an investment with development
potential.
Are you interested in more information or a personal tour? Do not hesitate to
contact us - we will be happy to send you a link to a web presentation with
details.
Offer IDN90580
Last updated01.09.2025
Price12 790 000 CZK, with agency fees, with legal services
Agency feeWith agency fees
Legal servicesWith legal services
Size5 rooms and more
House typeWith floors
ConditionRenovated
Construction typeBrick
OwnershipPersonal
Number of floors3
Underground floors1
Usable area477m2
Land area1441m2
GarageYes
ParkingYes
CellarYes
PoolNo
Water sourceLocal source
HeatingOther, Central electric, Central solid fuels
Electricity400V
Waste managementSump
Year of reconstruction2023
Building typeDetached
Road typeAsphalt
Energy RatingG - Exceptionally uneconomical
Send me an offer for a low-rate mortgage
Michal Šebor

Michal Šebor

Reveal phone number

Česká Společnost Realitní/Prodej a Správa Nemovitostí s.r.o.

Štefánikova 13/43, Praha 5, 15000

view all agency properties